GEA
L’entreprise
L’équipe
Les technologies
Station d’auscultation
Scanner 3D
Bras de mesures
Logiciels
Les références
Modélisation 3D du ministère des affaires etrangères
Modélisation 3D de l’université de Pau et des Pays de l’Adour
Modélisation 3D du boulevard Jean Bepmale, Saint-Gaudens (31)
Relevé et modélisation 3D du musée de Picardie, Amiens
Relevé architectural de façades – Paris
Relevé du théâtre national de Chaillot, Paris
Relevé de l’usine Andros, Biars-Sur-Cère (46)
Relevé des bâtiments d’état du département du Lot
Géomètres experts
Bureau d’étude/Maîtrise d’oeuvre
Aménagement (VRD)
Lotissement
Projet routier
Zone d’activité
Urbanisme
Copropriété
Levé de bâtiment
État descriptif de division
Règlement de copropriété
Expertises (Judiciaires et privées)
Revendication de propriété
Évaluation des biens
Foncier
Bornage
Plans d’alignement
Servitudes
Division foncières- Partage
Topographie
Plans topographiques linéaires et de masse toutes échelles
Implantations
Profil en long et travers
Bathymétrie
Calcul des cubatures
Assistance
Assistance à maîtrise d’ouvrage
Scanner / Modélisation 3D
BIM
Maquettes BIM TQC – Tel Que Construit
Maquette LOD 300 d’un site industriel
Maquette BIM LOD 300 de bâtiments historiques
Drones : Photogrammétrie et LIDAR
Gestion et optimisation
Gestion des réseaux fluides
Gestion de patrimoine et bâtiment
Modélisation industrielle (Réseaux – Structure)
Gestion de mines et carrières
Lever de tunnel
Visite virtuelle – Outils de gestion et d’analyse
Système d’information géographique 3D (SIG 3D)
Analyse et imagerie thermique
Conservation
Relevés d’architectures
Muséographie
Archivage 3D
Impression 3D et production de maquette
Précision
Métrologie – Implantation – Contrôle
Rétro-conception (Reverse Engineering)
Calibrage, ajustement et inspection d’outillage
Analyse et déformation de structure
Gestion de réseaux oléoduc et gazoduc
Simulation et conception
Analyse de sécurité
Clash contrôle
Accidentologie et calcul de déformations
Préconception en CAO
Reconstitution virtuelle
Communication
Perspectives de projet d’architecture
Intégration de projets dans l’existant
Film et animation 3D haute définition (HD)
Devis
Actualité
Contact
Espace client
Recherche
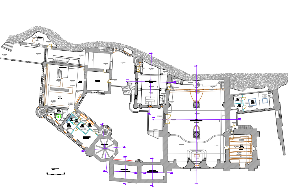
Exemple de plan d’intérieur
Accueil
Relevés d'architectures
Exemple de plan d’intérieur
Exemple de plan d’intérieur
Plan d’intérieur réalisé par scanner 3D